1 bedroom furnished apartment with pets accepted and wIFI Only
(Murray Hill), 430 sqft, rental $5,520 /month
Address: East 37Th Street, New York (10016), near subway station: 33 Street/Park Avenue (6)
33 Street/Park Avenue
4
# 24311787
Calculate your stay price
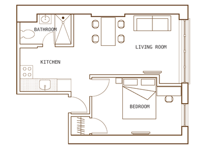
min 1 monthThis is a fully furnished one bedroom apartment located on 37th Street, in Murray Hill.
The entrance door opens up into the living room that is furnished with a double size sofabed, a TV and a dining table with four chairs. It has wood floors and two french doors opening on a juliet balcony overlooking the street.
The open kitchen is equipped with a stove, an oven, a microwave oven and a refrigerator with freezing compartment.
The bedroom provides a queen size bed, a closet, a TV and a desk with a chair. It has wood floors and a window overlooking the street.
The bathroom has a separate shower, a toilet and a sink.
Transportation
6 train is on 33th Street/Park Avenue
4, 5, 6 and 7 trains are on 42nd Street/Lexington Avenue
B, D, F and M trains are on 34th Street/6th Avenue
Neighborhood
Resi- dents are attracted by Murray Hill’s convenient location, restaurant and bar scene and rental deals. Office towers neighbor multi-family dwellings, brownstones and co-ops, all within walking distance of Grand Central Station. Swanky bars and restaurants are appearing along Park Avenue and pubs with decent happy hours dominate Third Avenue.Read the following
Room detail
Housing services
No smoking
Pets accepted
Air conditioning
Internet included
Cable
TV
This is a fully furnished one bedroom apartment located on 37th Street, in Murray Hill.
The entrance door opens up into the living room that is furnished with a double size sofabed, a TV and a dining table with four chairs. It has wood floors and two french doors opening on a juliet balcony overlooking the street.
The open kitchen is equipped with a stove, an oven, a microwave oven and a refrigerator with freezing compartment.
The bedroom provides a queen size bed, a closet, a TV and a desk with a chair. It has wood floors and a window overlooking the street.
The bathroom has a separate shower, a toilet and a sink.
Transportation
6 train is on 33th Street/Park Avenue
4, 5, 6 and 7 trains are on 42nd Street/Lexington Avenue
B, D, F and M trains are on 34th Street/6th Avenue
Neighborhood
Resi- dents are attracted by Murray Hill’s convenient location, restaurant and bar scene and rental deals. Office towers neighbor multi-family dwellings, brownstones and co-ops, all within walking distance of Grand Central Station. Swanky bars and restaurants are appearing along Park Avenue and pubs with decent happy hours dominate Third Avenue.
Neighbourhood

Station :
33 Street/Park Avenue ![]()
Nearby services
Internet cafe - Supermarket - Park - pharmacy - RestaurantAvailability
Price
| price / month | from 1 month |
| Available now | $5,520 |
Rental period
min 1 month


































