2 bedroom furnished apartment with wIFI Only
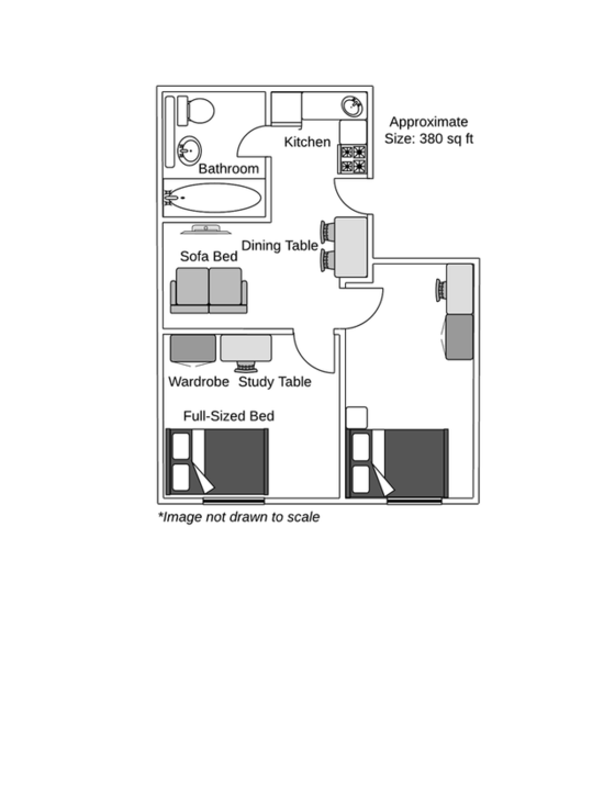
(Murray Hill), 380 sqft, rental $5,750 /month
Address: East 37Th Street, New York (10016), near subway station: 33 Street/Park Avenue (6)
Murray Hill
Floor area 380 sqf -
2nd floor no elevator
33 Street/Park Avenue
4
Available now
# 34316168
$5,750 /month
No agency fees until 01-Jan-70
Calculate your stay price
min 1 monthApartment blueprint

Room detail
Housing services
No smoking
Pets not accepted
Internet included
Cable
WIFI Only
Laundromat in the building
Neighbourhood

Station :
33 Street/Park Avenue ![]()
Nearby services
Park - pharmacy - RestaurantAvailability
Price
| price / month | from 1 month |
| Available now | $5,750 |
Rental period
min 1 month










































