2 bedroom furnished apartment with wIFI Only
(Greenwich Village), 420 sqft, rental $5,000 /month
Address: Sullivan Street, New York (10012), near subway station: West 4 Street/Washington Square/Avenue of Americas (A,B,C,D,E,F,M)
West 4 Street/Washington Square/Avenue of Americas
4
# 25417089
Calculate your stay price
min 9 monthsThis is a fully furnished 2BR/1BA apartment located in Greenwich Village.
You enter the apartment into the kitchen that is equipped with a stove, an oven, a microwave oven, a toaster and a refrigerator with freezing compartment.
Each bedroom with hardwood floors provides an AC, a queen/ double size bed, a closet, a bedside table and a desk with a chair. With the first bedroom only comes a cabled flat screen TV.
Transportation:
D train runs at West 4 Street.
R train runs at 8St/ NYU.
Neighborhood (copy from WIKIPEDIA):
Greenwich Village is a neighborhood on the west side of Lower Manhattan, New York City. Greenwich Village has been known as an artists' haven, the Bohemian capital, the cradle of the modern LGBT movement, and the East Coast birthplace of both the Beat and '60s counterculture movements. Groenwijck, one of the Dutch names for the village (meaning "Green District"), was Anglicized to Greenwich. New York University (NYU) is located in Greenwich Village.Read the following
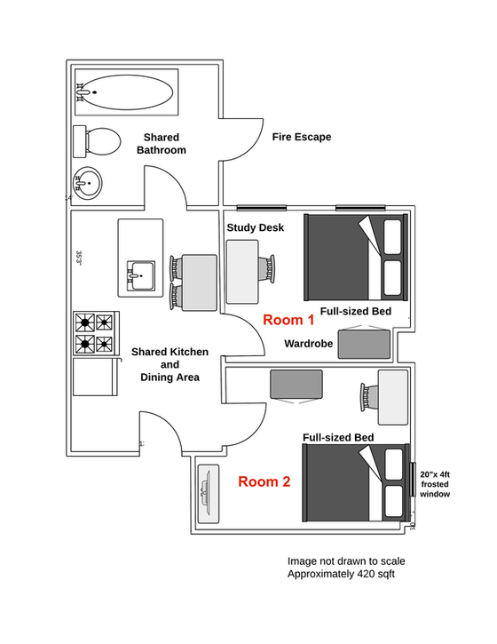
Apartment blueprint

Room detail
Housing services
No smoking
Pets not accepted
Air conditioning
Cable
This is a fully furnished 2BR/1BA apartment located in Greenwich Village.
You enter the apartment into the kitchen that is equipped with a stove, an oven, a microwave oven, a toaster and a refrigerator with freezing compartment.
Each bedroom with hardwood floors provides an AC, a queen/ double size bed, a closet, a bedside table and a desk with a chair. With the first bedroom only comes a cabled flat screen TV.
Transportation:
D train runs at West 4 Street.
R train runs at 8St/ NYU.
Neighborhood (copy from WIKIPEDIA):
Greenwich Village is a neighborhood on the west side of Lower Manhattan, New York City. Greenwich Village has been known as an artists' haven, the Bohemian capital, the cradle of the modern LGBT movement, and the East Coast birthplace of both the Beat and '60s counterculture movements. Groenwijck, one of the Dutch names for the village (meaning "Green District"), was Anglicized to Greenwich. New York University (NYU) is located in Greenwich Village.
Neighbourhood

Station :
West 4 Street/Washington Square/Avenue of Americas
![]()
Nearby services
Park - RestaurantAvailability
Price
| price / month | from 9 months |
| Available now | $5,000 |
Rental period
min 9 months






















