2 bedroom furnished apartment with wIFI Only
(Chelsea), 325 sqft, rental $5,865 /month
Address: West 18Th Street, New York (10011), near subway station: 14 Street/8 Avenue (A,C,E,L)
Chelsea
Floor area 325 sqf -
1st Floor no elevator
14 Street/8 Avenue
4
Available now
# 35117443
$5,865 /month
No agency fees until 01-Jan-70
Calculate your stay price
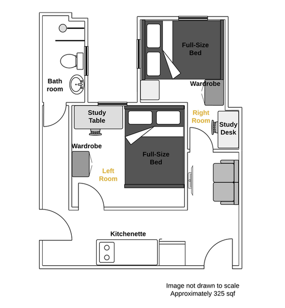
min 1 monthApartment blueprint

Room detail
Housing services
No smoking
Pets not accepted
Air conditioning
Internet included
Cable
TV
Shabbat Hot Plate
Linen - WIFI Only
Laundromat in the building
Neighbourhood

Station :
14 Street/8 Avenue
![]()
Nearby services
Internet cafe - Supermarket - Park - Theater - pharmacy - RestaurantAvailability
Price
| price / month | from 1 month |
| Available now | $5,865 |
Rental period
min 1 month
























