2 bedroom furnished apartment with washing machine
(Chelsea), 375 sqft, rental $8,050 /month
Address: West 18Th Street, New York (10011), near subway station: 14 Street/8 Avenue (A,C,E,L)
Chelsea
Floor area 375 sqf -
3rd floor no elevator
14 Street/8 Avenue
4
Available now
# 35117451
$8,050 /month
No agency fees until 01-Jan-70
Calculate your stay price
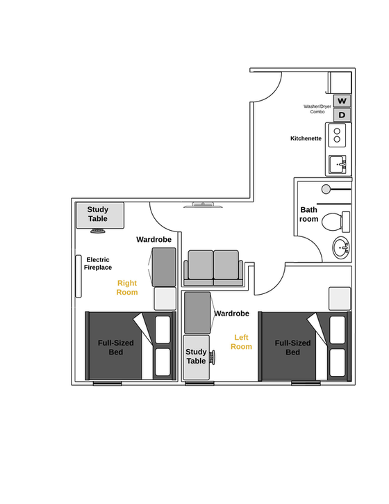
min 2 monthsApartment blueprint

Room detail
Shabbat Hot Plate - Refrigerator - Microwave oven - Freezer - extractor hood - Toaster - Kettle
Open
Linen - Quilt - desk - wardrobe - Fireplace - 1 Chair(s) - Bedside table
window - Carpeting - Queen size bed
Housing services
No smoking
Pets not accepted
Air conditioning
Internet included
Cable
Washing machine
TV
Shabbat Hot Plate
Laundromat in the building
Neighbourhood

Station :
14 Street/8 Avenue
![]()
Nearby services
Internet cafe - Supermarket - Park - Theater - pharmacy - RestaurantAvailability
Price
| price / month | from 2 months |
| Available now | $8,050 |
Rental period
min 2 months
























