2 bedroom furnished apartment with pets accepted and wIFI Only
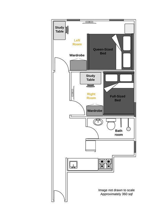
(Chelsea), 360 sqft, rental $6,670 /month
Address: West 18Th Street, New York (10011), near subway station: 14 Street/8 Avenue (A,C,E,L)
Chelsea
Floor area 360 sqf -
2nd floor no elevator
14 Street/8 Avenue
4
Available now
# 25117452
$6,670 /month
No agency fees until 01-Jan-70
Calculate your stay price
min 1 monthApartment blueprint

Room detail
Hob - Refrigerator - Freezer - Oven - Microwave oven - extractor hood - Toaster - Kettle - wardrobe
window - Separate - Tile
Housing services
No smoking
Pets accepted
Air conditioning
Internet included
Cable
TV
Linen - WIFI Only
Laundromat in the building
Neighbourhood

Station :
14 Street/8 Avenue
![]()
Nearby services
Internet cafe - Supermarket - Park - Theater - pharmacy - RestaurantAvailability
Price
| price / month | from 1 month |
| Available now | $6,670 |
Rental period
min 1 month






































