2 bedroom furnished apartment with pets accepted and wIFI Only
(Chelsea), 360 sqft, rental $6,670 /month
Address: West 18Th Street, New York (10011), near subway station: 14 Street/8 Avenue (A,C,E,L)
Chelsea
Floor area 360 sqf -
3rd floor no elevator
14 Street/8 Avenue
6
Available now
# 25117465
$6,670 /month
No agency fees until 01-Jan-70
Calculate your stay price
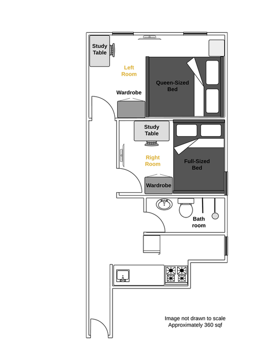
min 2 monthsApartment blueprint

Room detail
Hob - Refrigerator - Freezer - Oven - Microwave oven - extractor hood - Toaster - Coffee-maker - Cupboard
window - Separate - Tile
Housing services
No smoking
Pets accepted
Air conditioning
Internet included
Cable
TV
Linen - WIFI Only
Laundromat in the building
Neighbourhood

Station :
14 Street/8 Avenue
![]()
Nearby services
Internet cafe - Supermarket - Park - Theater - pharmacy - RestaurantAvailability
Price
| price / month | from 2 months |
| Available now | $6,670 |
Rental period
min 2 months






































