Furnished studio with elevator, pets accepted and wIFI Only
(Theatre District), 400 sqft, rental
Address: West 52Nd Street, New York (10019), near subway station: 50 Street/Broadway (1)
Theatre District
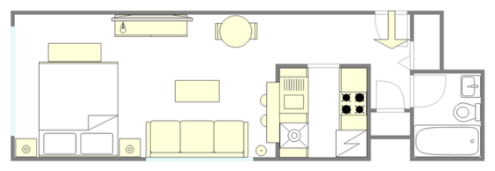
Floor area 400 sqf -
9th floor elevator
50 Street/Broadway
3
This property has already been rented
# 13218146
Calculate your stay price
Room detail
Housing services
Elevator
No smoking
Pets accepted
Air conditioning
Cable
Dishwasher
TV
WIFI Only
Central heating
Doorman - Laundromat in the building - Club de gym dans la résidence - Concierge
Neighbourhood

Station :
50 Street/Broadway ![]()
Nearby services
Laundromat - Supermarket - Park - Cinema - Museum - Theater - pharmacy - RestaurantAvailability
Price
This property has already been rented
Rental period









































