Apartamento 2 quartos mobiliado
(Greenwich Village), 28 m², locaçao 5 000 $ /mês
Endereço: Sullivan Street, New York (10012), perto da estação de metro West 4 Street/Washington Square/Avenue of Americas (A,B,C,D,E,F,M)
West 4 Street/Washington Square/Avenue of Americas
4
# 25417093
Calcular o custo de sua estadia
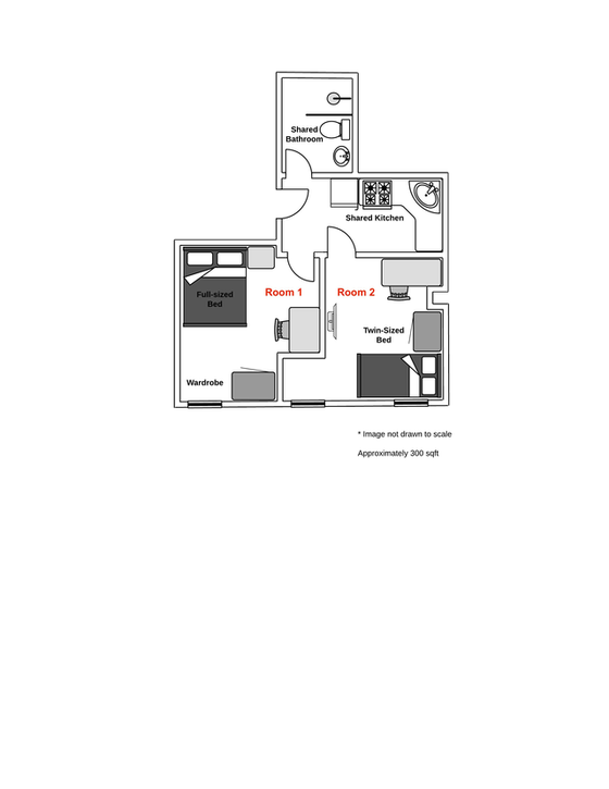
min 9 MesThis is a fully furnished 2BR/1BA apartment located in Greenwich Village. Please note that this apartment does not have a living room (please see floor plan).
You enter the apartment into the kitchen featuring a stove, an oven, a microwave oven, a toaster and a refrigerator with freezing compartment.
Each bedroom with hardwood floors provides an AC, a queen/ double size bed, a closet, a bedside table and a desk with a chair. The first bedroom also comes with a cabled flat screen TV.
Transportation:
D train runs at West 4 Street.
R train runs at 8St/ NYU.
Neighborhood (copy from WIKIPEDIA):
Greenwich Village is a neighborhood on the west side of Lower Manhattan, New York City. Greenwich Village has been known as an artists' haven, the Bohemian capital, the cradle of the modern LGBT movement, and the East Coast birthplace of both the Beat and '60s counterculture movements. Groenwijck, one of the Dutch names for the village (meaning "Green District"), was Anglicized to Greenwich. New York University (NYU) is located in Greenwich Village.Ler o resto
Plano do apartamento

Detalhes do apartamento
Serviços do imovel
Naõ fumador
Animais não são aceites
Ar condicionado
Internet tudo incluído
Cabo
Televisaõ
This is a fully furnished 2BR/1BA apartment located in Greenwich Village. Please note that this apartment does not have a living room (please see floor plan).
You enter the apartment into the kitchen featuring a stove, an oven, a microwave oven, a toaster and a refrigerator with freezing compartment.
Each bedroom with hardwood floors provides an AC, a queen/ double size bed, a closet, a bedside table and a desk with a chair. The first bedroom also comes with a cabled flat screen TV.
Transportation:
D train runs at West 4 Street.
R train runs at 8St/ NYU.
Neighborhood (copy from WIKIPEDIA):
Greenwich Village is a neighborhood on the west side of Lower Manhattan, New York City. Greenwich Village has been known as an artists' haven, the Bohemian capital, the cradle of the modern LGBT movement, and the East Coast birthplace of both the Beat and '60s counterculture movements. Groenwijck, one of the Dutch names for the village (meaning "Green District"), was Anglicized to Greenwich. New York University (NYU) is located in Greenwich Village.
Bairro

Estaçao :
West 4 Street/Washington Square/Avenue of Americas
![]()
Serviços proximos
Parque - RestauranteDisponibilidades
Preço
| Preço / mês | a partir de 9 Mes |
| Disponible agora | 5 000 $ |
Duração do arrendamento
min 9 Mes












