Apartamento 2 peças com terraço
(Chelsea), locaçao 74 m², 7 130 $ /mês
Endereço: West 14Th Street, New York (10011), perto da estação de metro 14 Street/7 Avenue (1,2,3)
14 Street/7 Avenue
# 2517515
Contactar URBANLIVING INTL.

418 8th Street
11215 Brooklyn
+1 (646) 209 8947
+1 (646) 374 8947
Saber mais sobre a agencia
Ver estes anuncios
Calcular o custo de sua estadia
min 6 MesRARE OPPORTUNITY IN THE WEST VILLAGE!!!!!
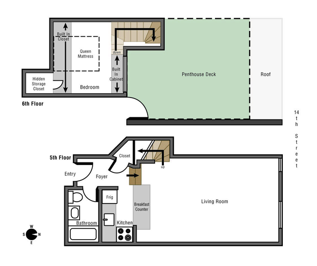
Enjoy spring, summer, fall, and winter on your own planted terrace. Coffee in the morning, cocktails and dinner on the terrace at sunset. Nothing like this on the rental market at this time in the West Village. Beautiful penthouse duplex (recently renovated) in the West Village with private deck and garden. Unusual layout in a great location. Great for a pied a terre, or just a wonderful home in the city.
The first level has an expansive living room flooded with sunlight. The kitchen is open to living room via a granite topped breakfast bar, and has a stainless steel Bosch refrigerator and dishwasher, Haier glass cook top/oven, microwave and granite counter.
The fully tiled (floor to ceiling) bathroom is also on the first level, with a floating vanity, custom lighting, modern fixtures and a glass enclosed shower. The entry foyer has a deep coat closet.
The bedroom is on the second level of the duplex; a stairway leads from the living room to the upstairs bedroom. Custom closets surround the area that fits a recessed bed (with an easily accessible deep closet space within one of the closets: a lateral attic!). One wall of the bedroom has sliding glass doors above a low bluestone-topped built-in storage unit. Steps lead to an expansive planted deck that is designated for the tenants of this apartment.
On the deck, a cafe table with chairs plus two chaise lounges with an accent table are provided. Automatically-watered bamboo, ivy and rosemary planters add to the enjoyment of the deck. Due to the moderate height of the buildings as you look north to Chelsea (mostly 6 story buildings), there are expansive, long views to be enjoyed from the deck.
The newly renovated apartment is elegant and spotless. The ceiling heights range from 8 to 9 feet throughout the apartment and there are two built-in (through the wall) air-conditioners, one on the first floor and one on the second floor. Lobby door intercom buzzer units are on both levels.
The apartment is a duplex on the 5th-6th floors of a walkup building, facing 14th Street, on the north end of the West Village and the south end of Chelsea.
The lively social hub of the meat-packing district is one block west, with all its new restaurants, galleries, clothing and furniture stores. There is a laundry on the first floor of the building. Security is excellent, with two buzz-through doors to enter the lobby. Sorry, but this is a no pets apartment.
Transportation opportunities abound, with a subway entrance on 7th ave and 14th st (1, 2, 3) and downtown buses on 7th ave. There is also a subway entrance on 8th ave and 14th st (A, E, C) and an uptown bus on 8th ave; and east/west crosstown buses on 14th St.Ler o resto
Virtual tour
The virtual tour isn't working? Check that your web browser is up-to-date by clicking hereDetalhes do apartamento
Mot de l'agence

URBANLIVING INTL.
418 8th Street
11215 Brooklyn
+1 (646) 209 8947
+1 (646) 374 8947
RARE OPPORTUNITY IN THE WEST VILLAGE!!!!! Enjoy spring, summer, fall, and winter on your own planted terrace. Coffee in the morning, cocktails and dinner on the terrace at sunset. Nothing like this on the rental market at this time in the West Village. Beautiful penthouse duplex (recently renovated) in the West Village with private deck and garden. Unusual layout in a great location. Great for a pied a terre, or just a wonderful home in the city. The first level has an expansive living room flooded with sunlight. The kitchen is open to living room via a granite topped breakfast bar, and has a stainless steel Bosch refrigerator and dishwasher, Haier glass cook top/oven, microwave and granite counter. The fully tiled (floor to ceiling) bathroom is also on the first level, with a floating vanity, custom lighting, modern fixtures and a glass enclosed shower. The entry foyer has a deep coat closet. The bedroom is on the second level of the duplex; a stairway leads from the living room to the upstairs bedroom. Custom closets surround the area that fits a recessed bed (with an easily accessible deep closet space within one of the closets: a lateral attic!). One wall of the bedroom has sliding glass doors above a low bluestone-topped built-in storage unit. Steps lead to an expansive planted deck that is designated for the tenants of this apartment. On the deck, a cafe table with chairs plus two chaise lounges with an accent table are provided. Automatically-watered bamboo, ivy and rosemary planters add to the enjoyment of the deck. Due to the moderate height of the buildings as you look north to Chelsea (mostly 6 story buildings), there are expansive, long views to be enjoyed from the deck. The newly renovated apartment is elegant and spotless. The ceiling heights range from 8 to 9 feet throughout the apartment and there are two built-in (through the wall) air-conditioners, one on the first floor and one on the second floor. Lobby door intercom buzzer units are on both levels. The apartment is a duplex on the 5th-6th floors of a walkup building, facing 14th Street, on the north end of the West Village and the south end of Chelsea. The lively social hub of the meat-packing district is one block west, with all its new restaurants, galleries, clothing and furniture stores. There is a laundry on the first floor of the building. Security is excellent, with two buzz-through doors to enter the lobby. Sorry, but this is a no pets apartment. Transportation opportunities abound, with a subway entrance on 7th ave and 14th st (1, 2, 3) and downtown buses on 7th ave. There is also a subway entrance on 8th ave and 14th st (A, E, C) and an uptown bus on 8th ave; and east/west crosstown buses on 14th St.
Preço e Disponibilidade
| Preço / mês | a partir de 6 mês |
| Disponible agora | 7 130 $ |
Gastos da agencia : de 7 130 $ a 12 834 $
Serviços do imovel
Naõ fumador
Animais não são aceites
Ar condicionado
Màquina de lavar a loiça
Televisaõ
Aparelhagem
Ambiente
Estaçao:
14 Street/7 Avenue
Serviços proximos: Supermercado - Farmácia - Restaurante



















































