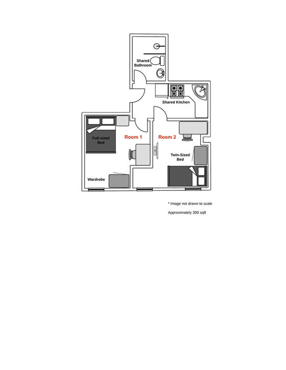
2 bedrooms Apartment furnished - Sullivan Street


05
4
2 bedrooms Apartment furnishedSullivan Street
No. 25417088
Floor area 300 sqf -
3rd floor no elevator
Available now
West 4 Street/Washington Square/Avenue of Americas
Per month : $7,500 *







