Habitación privada en un apartamento compartido apartamento con ascensor
(Harlem), 15 m², compartir desde 1 319 $ /mes
Compartir | con el propietario | 1 ocupantes máximo Dirección: West 141St Street, New York (10030), cerca de la estación de metro 135 Street/Lenox Avenue (2,3)
135 Street/Lenox Avenue
1
# 58411938
Calcular el costE de su estancia
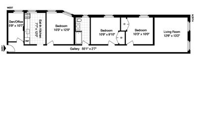
min 3 mesesThis four Bedrooms/1Bathroom apartment is located on third floor of an elevator building on West 141th Street, between Lenox and Seventh Avenue.
The apartment :
The entrance door opens up into a hallway which leads to all the rooms in the unit.
The bathroom, the kitchen and the living room are to share.
The living room with wood floors has two sofas, a TV (with Netflix), an armchair, a table and windows facing the street.
The separate eat-in kitchen is equipped with a stove, an oven, two refrigerators with freezing compartments and two stools.
The bathroom comes with a sink, a toilet and a shower in tub .
The bedroom:
This wooden floored bedroom for rent features a double size bed, a closet and windows facing the court yard.
Neighborhood :
The apartment is at walking distance from grocery, laundry, pharmacy, park, etc. Also, it is 3 stops from Central Park, and 6 stops from Times Square, on the express train lines 2 and 3.
Transportation:
-135 St. (2 and 3 trains)
-145 St. (3 train)
-141 St. (7, 1, 102, Bx19 buses)Leer a continuación
























































