Appartement 2 chambres meublé avec jardin
(Crown Heights), 121 m², location 5 400 $ /mois
Adresse : St Marks Avenue, Brooklyn (11213), proche du métro Utica Avenue/Fulton Street (A,C)
Utica Avenue/Fulton Street
5
# 4B717724
Coût de votre séjour
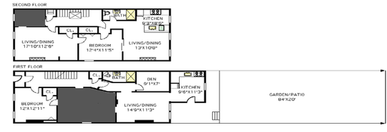
min 1 moisThis spacious fully furnished 2BR/2BA duplex apartment with two kitchens and a private garden, high ceiling, AC and hardwood floors, is located in Crown height on St Marks Avenue.
On the first floor:
The first bedroom features a double size bed, a mirror and a large closet.
The kitchen offers a stove and an oven, a refrigerator with a freezer compartment, a sink and plenty of cabinets. The kitchen gives access to a huge garden surrounded by a quiet environment.
The bathroom has a large shower, a sink and a toilet.
On the second floor:
The second bedroom features a king size bed, two spacious closets and a dresser.
The living room, enlightened by two large windows with a high ceiling and a decorative fireplace, includes an armchair, a sofa and a coffee table. There is also a closet and a beside table.
The dining room offers a chair and a flat screen TV on a decorative fireplace.
The open kitchen features a dishwasher, a microwave and an oven, a stove and a sink, a refrigerator and a freezer compartment.
The bathroom has a large shower, a sink and a toilet.
Transportation :
3 and 4 trains run at Utica Av (0. 38 miles)
Neighborhood :
Crown Heights is a neighborhood in the central portion of the New York City borough of Brooklyn. The main thoroughfare through this neighborhood is Eastern Parkway, a tree-lined boulevard designed by Frederick Law Olmsted extending 2 miles (3. 2 kilometers) east–west.
Crown Heights is bounded by Washington Avenue to the west, Atlantic Avenue to the north, Ralph Avenue to the east, and Empire Boulevard/East New York Avenue to the south. It is about 1 mile (1. 6 km) wide and 2 miles (3. 2 km) long. Neighborhoods bordering Crown Heights include Prospect Heights to the west, Flatbush and Prospect Lefferts Gardens to the south, Brownsville to the east, and Bedford-Stuyvesant to the north.Lire la suite
Détail des pièces
Plaques de cuisson - Réfrigerateur - Four - Micro ondes - Freezer - Cafetière - Table à manger - Vaisselle
Ouverte - Carrelage
Services du logement
Non fumeurs
Pas d'animaux acceptés
Air conditionné
Lave vaisselle
Télé
This spacious fully furnished 2BR/2BA duplex apartment with two kitchens and a private garden, high ceiling, AC and hardwood floors, is located in Crown height on St Marks Avenue.
On the first floor:
The first bedroom features a double size bed, a mirror and a large closet.
The kitchen offers a stove and an oven, a refrigerator with a freezer compartment, a sink and plenty of cabinets. The kitchen gives access to a huge garden surrounded by a quiet environment.
The bathroom has a large shower, a sink and a toilet.
On the second floor:
The second bedroom features a king size bed, two spacious closets and a dresser.
The living room, enlightened by two large windows with a high ceiling and a decorative fireplace, includes an armchair, a sofa and a coffee table. There is also a closet and a beside table.
The dining room offers a chair and a flat screen TV on a decorative fireplace.
The open kitchen features a dishwasher, a microwave and an oven, a stove and a sink, a refrigerator and a freezer compartment.
The bathroom has a large shower, a sink and a toilet.
Transportation :
3 and 4 trains run at Utica Av (0. 38 miles)
Neighborhood :
Crown Heights is a neighborhood in the central portion of the New York City borough of Brooklyn. The main thoroughfare through this neighborhood is Eastern Parkway, a tree-lined boulevard designed by Frederick Law Olmsted extending 2 miles (3. 2 kilometers) east–west.
Crown Heights is bounded by Washington Avenue to the west, Atlantic Avenue to the north, Ralph Avenue to the east, and Empire Boulevard/East New York Avenue to the south. It is about 1 mile (1. 6 km) wide and 2 miles (3. 2 km) long. Neighborhoods bordering Crown Heights include Prospect Heights to the west, Flatbush and Prospect Lefferts Gardens to the south, Brownsville to the east, and Bedford-Stuyvesant to the north.
Quartier

Station :
Utica Avenue/Fulton Street
![]()
Services proches
Laverie - Supermarché - Parc - Club de gym - Boulangerie - Pharmacie - RestaurantDisponibilités
Tarifs
| Prix / mois | à partir de 1 mois |
| Disponible maintenant | 5 400 $ |
Durée de location
min 1 mois






































