Appartement 3 pièces avec terrasse
(Stuyvesant Heights), location 87 m², 3 280 $ /mois
Adresse : Jefferson Avenue, Brooklyn (11221), proche du métro Nostrand Avenue
Nostrand Avenue
# 3BV17574
Contacter URBANLIVING INTL.

Coût de votre séjour
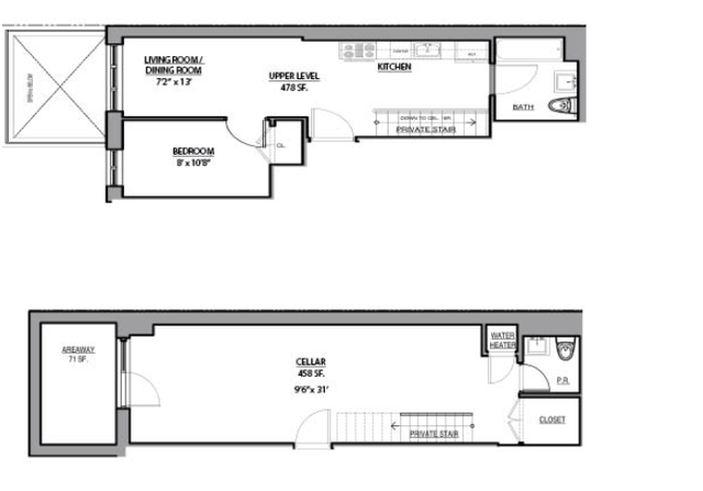
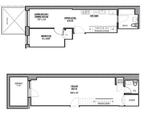
min 12 moisOn a tree-lined block in Bedford-Stuyvesant's Historic District, Not your average rental, Be the first to occupy this very unique and versatile bright 936sf one bedroom duplex, with one and half bath, located on the first floor of a four-story building with a modern brick façade
The spacious second floor below with its private entry and a powder room, is multipurpose, perfect for a den, an office, etc, and it is full of light with its large bay windows and an access to a Private Terrace/Patio of 76sf,
The unit features white oak hardwood flooring throughout. In the kitchen, high-end appliances such as Fisher & Paykel refrigerator, Bosch range and dishwashers and custom cabinetry. In the contemporary bathroom, a stainless steel rain shower and a deep soaking bathtub.
There is as well an access to the 4th Floor rooftop for residents of the building.
Video Intercom, Central A/C, Pets Allowed
Easy Transportation with the A/C subways at Utica Avenue, the J/Z subways at
Gates Avenue, and the B26 and B46 bus stops just one block away. And just few minutes from the building , the neighborhood is already full with dining destinations such as Saraghina's, Dough, Peaches HotHouse, L’Antagoniste and Alice's Arbor,Lire la suite



















































