Stanza privata in un appartamento condiviso 2 camere
(Chelsea), 12 m², coabitazione a partire da $ 3 450 /mese
Coabitazione | con il proprietario | 1 inquilino(i) massimo Indirizzo : West 18Th Street, New York (10011), nei pressi della stazione della metropolitana 14 Street/8 Avenue (A,C,E,L)
Chelsea
~ 130 sqf -
3° piano senza ascensore
14 Street/8 Avenue
1
Disponibile ora
# 25119445
$ 3 450 /mese
0$ di spese d'agenzia fino al 01-Gen-70
Calcola il prezzo del tuo soggiorno
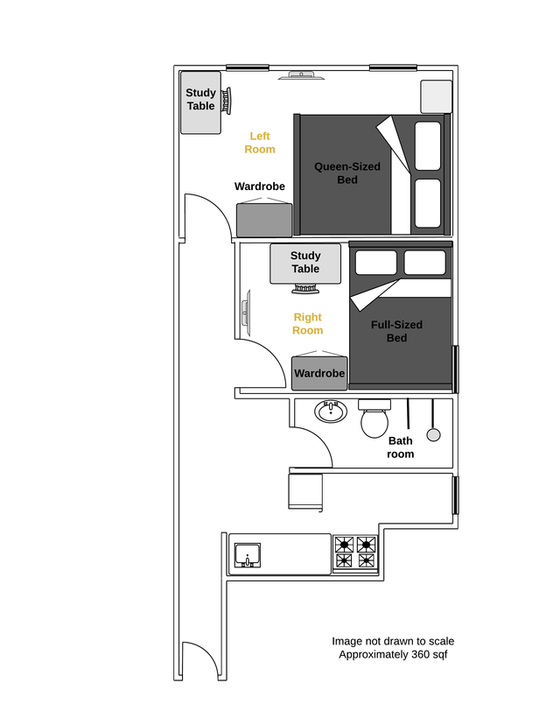
min 1 mesePianta dell'appartamento

Dettagli dell'appartamento
Televisione - Lenzuola - Scrivania - Guardaroba - 1 Sdraia (e) - Comodino
Finestra - Moquette - Letto di 160 cm






























