Stanza privata in un appartamento condiviso 2 camere con si accettano animali e internet via WIFI
(Chelsea), 33 m², coabitazione a partire da $ 3 450 /mese
Coabitazione | con il locatario | 2 inquilino(i) massimo Indirizzo : West 18Th Street, New York (10011), nei pressi della stazione della metropolitana 14 Street/8 Avenue (A,C,E,L)
Chelsea
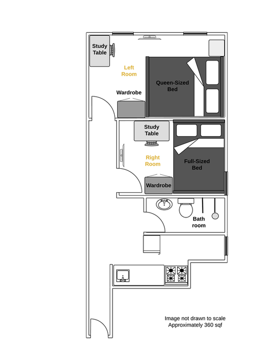
~ 360 sqf -
2° piano senza ascensore
14 Street/8 Avenue
2
Disponibile ora
# 25120574
$ 3 450 /mese
0$ di spese d'agenzia fino al 01-Gen-70
Calcola il prezzo del tuo soggiorno
min 9 mesiPianta dell'appartamento

Dettagli dell'appartamento
Televisione - Lenzuola - Scrivania - Guardaroba - 1 Sdraia (e) - Comodino
Finestra - Moquette - Letto di 160 cm






























