Private room in a shared apartment 2 bedroom with pets accepted and wIFI Only
(Chelsea), 130 sqft, roommate share from $3,450 /month
Roommate share | with the lanlord | 6 occupant(s) maximum Address: West 18Th Street, New York (10011), near subway station: 14 Street/8 Avenue (A,C,E,L)
Chelsea
Floor area 130 sqf -
3rd floor no elevator
14 Street/8 Avenue
6
Available now
# 25118288
$3,450 /month
No agency fees until 01-Jan-70
Calculate your stay price
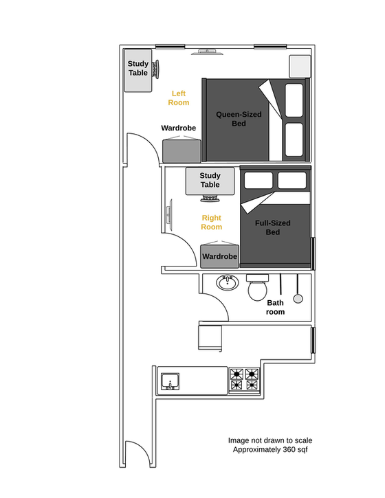
min 1 monthApartment blueprint

Room detail
Hob - Refrigerator - Freezer - Oven - Microwave oven - extractor hood - Toaster - Coffee-maker - Cupboard
window - Shared use - Separate - Tile
























